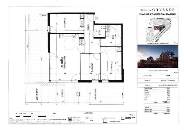
Appartement T4 76m²









Appartement 4 pièces 76.48m² - CHAMBRAY LES TOURS - Appartement récent T4 comprenant une entrée avec placard, un séjour, une cuisine aménagée et équipée (four, plaques vitrocéramiques, hotte), 3 chambres dont 2 avec placard, une salle d'eau et WC séparés. L'appartement dispose aussi d'une terrasse, d'un jardin et de 2 places de parking.
L'appartement est disponible le 5 mars 2026.
Loyer : 955 € dont 123 € de charges (entretien des communs, eau froide) avec régularisation annuelle. Prévoir environ 80€ pour le chauffage gaz et l'eau chaude.
Dépôt de garantie : 832 €.
Honoraires locataire : 687 € dont 229 € d'état des lieux d'entrée.
DPE C, GES C. Estimation des coûts annuels d'énergie du logement : entre 457 € et 618 €. DPE réalisé le 16/12/2022.
ATTENTION BIEN SOUS LOI PINEL, soumis à critères d'éligibilité
Les informations sur les risques auxquels ce bien est exposé sont disponibles sur le site Géorisques : www.georisques.gouv.fr
ECI IMMOBILIER : 02.47.05.08.26. Le bien est à louer par l'intermédiaire de l'agent commercial Stéphane SCHARLY immatriculé au RSAC de 92259978200013, sous le numéro 534996244.
Loyer de 955,00 euros par mois charges comprises dont 123,00 euros par mois de provision pour charges (soumis à la régularisation annuelle).
Les honoraires charge locataire sont de 687,00 euros ( soit 8,98 euros/m² ) dont 229,00 euros pour état des lieux ( soit 2,99 euros/m² ).
Montant estimé des dépenses annuelles d'énergie pour un usage standard : 538 euros. Prix moyens des énergies indexés en 2021.







